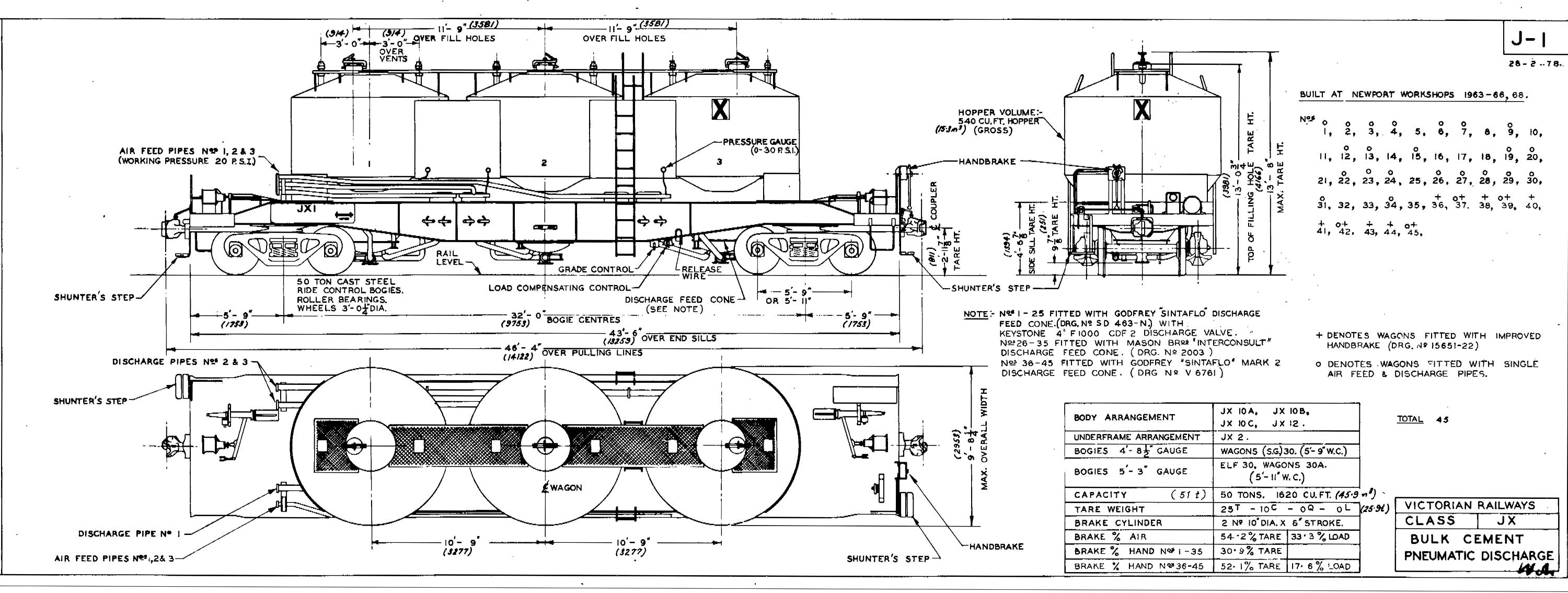
JX cement hoppers

ABOVE: JX 104 at Shepparton, 1978.
|
The JX's carried bulk cement, mainly from Waurn Ponds near Geelong, to many locations around the state. An air supply was required to unload them as they were not gravity discharge. In the mid 80's they were used to carry cement to NSW for the building on the new parliament house in Canberra, in this service they ran in blocks of about 15 - 30 wagons.
The last 50 (109 - 158) were built as VPCX |
|||||||||||||||||||||
|
||||||||||||||||||||||

ABOVE: JX 10 at Sth Dynon, Dec. 1977
Photo courtesy Peter J. Vincent

ABOVE: JX 39 at Nth Geelong, 1978
Photo courtesy Geoff Winkler

ABOVE: JX 42 circa 1968
official VR photo

ABOVE & BELOW: Builders photos at Newport, 1963.
official VR photos


ABOVE: JX 55 as built at Newport, 1971
official VR photo


![]() |
![]() |
![]() |
![]() |
|||||
Page last updated